A fantastic opportunity to acquire this barn with Planning Permission for conversion to a single residential dwelling.
Occupying an enviable position at Browns Lane off Moorside Lane, Holbrook. The plot offers excellent convenience, with easy access to Belper town centre as well as transport links to the A38 and M1 and Derby.
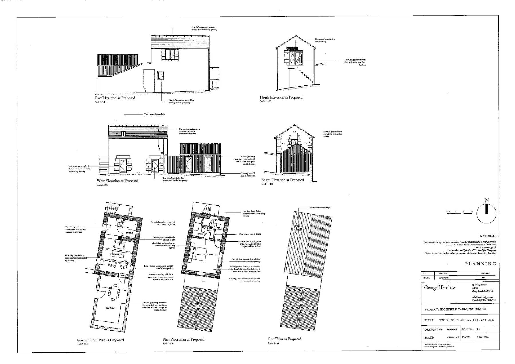
Planning consent has been granted by Amber Valley Borough Council (Ref: AVA/2021/1140) on the 14th June 2024 for the conversion of this listed barn to a residential dwelling with the addition of a single storey extension, alterations to stone wall for the creation of vehicular access and associated parking. Listed Building Consent AVA/2021/1109.
Please Note: Aerial images/marketing documents are for guidance only and provide a rough indication of the plot boundaries. The total ground area has not been formally measured, ground as indicated in the plan outlined in red.
Prospective buyers must satisfy themselves regarding the proposed scheme and ensure they are fully aware of the ground conditions prior to exchange of contracts.
